Woonoppervlakte
Circa 94 m²
Perceeloppervlakte
Circa 397 m²
Bouwjaar
Gebouwd in 1952
Aantal kamers
5 kamers (3 slaapkamers)

Lisztlaan 7

4702 KJ, Roosendaal (Noord-Brabant)

Op zoek naar een ruime twee-onder-een-kapwoning op een rustige locatie, maar toch dicht bij alle belangrijke uitvalswegen? Welkom bij Lisztlaan 7! Hier geniet je van comfortabel wonen, met volop ruimte binnen én buiten én parkeergelegenheid op eigen terrein. Met onder andere een royale woonkamer met gashaard, drie slaapkamers, een grote tuin met diverse terrassen én een ruime garage met veel extra opbergruimte, is dit een woning met eindeloze mogelijkheden. Heb jij al plannen voor een praktijk aan huis? Hier kan het! Nieuwsgierig? Plan snel jouw bezichtiging in en laat je verrassen!

Bekijk nu de woning via de unieke website lisztlaan7.nl.

Entree
De nette voortuin verwelkomt je meteen. Je parkeert eenvoudig op je eigen oprit. Vanaf de voortuin heb je toegang tot de garage, de achtertuin én natuurlijk de voordeur. Binnenkomend in de hal heb je toegang tot de trap naar de eerste verdieping, de royale kelder, het toilet, de keuken en de woonkamer.

Wonen & Koken
De woonkamer is ruim, licht en netjes afgewerkt. Grote raampartijen aan de voorzijde, zijramen en openslaande deuren naar de tuin zorgen voor veel daglicht. De gashaard kan worden gebruikt als extra warmtebron en geeft nog meer sfeer aan de woonkamer. De praktische inbouwkast in de woonkamer biedt handige opbergruimte. Hier is meer dan genoeg plek voor een zithoek, werkplek én een eethoek. De vloer is voorzien van vloerbedekking. De dichte keuken is ruim, licht en biedt plek voor een gezellige eettafel. Er is een aparte aansluiting voor wasmachine en droger en via de keukendeur loop je zo de tuin in.

Slapen, Dromen & Douchen
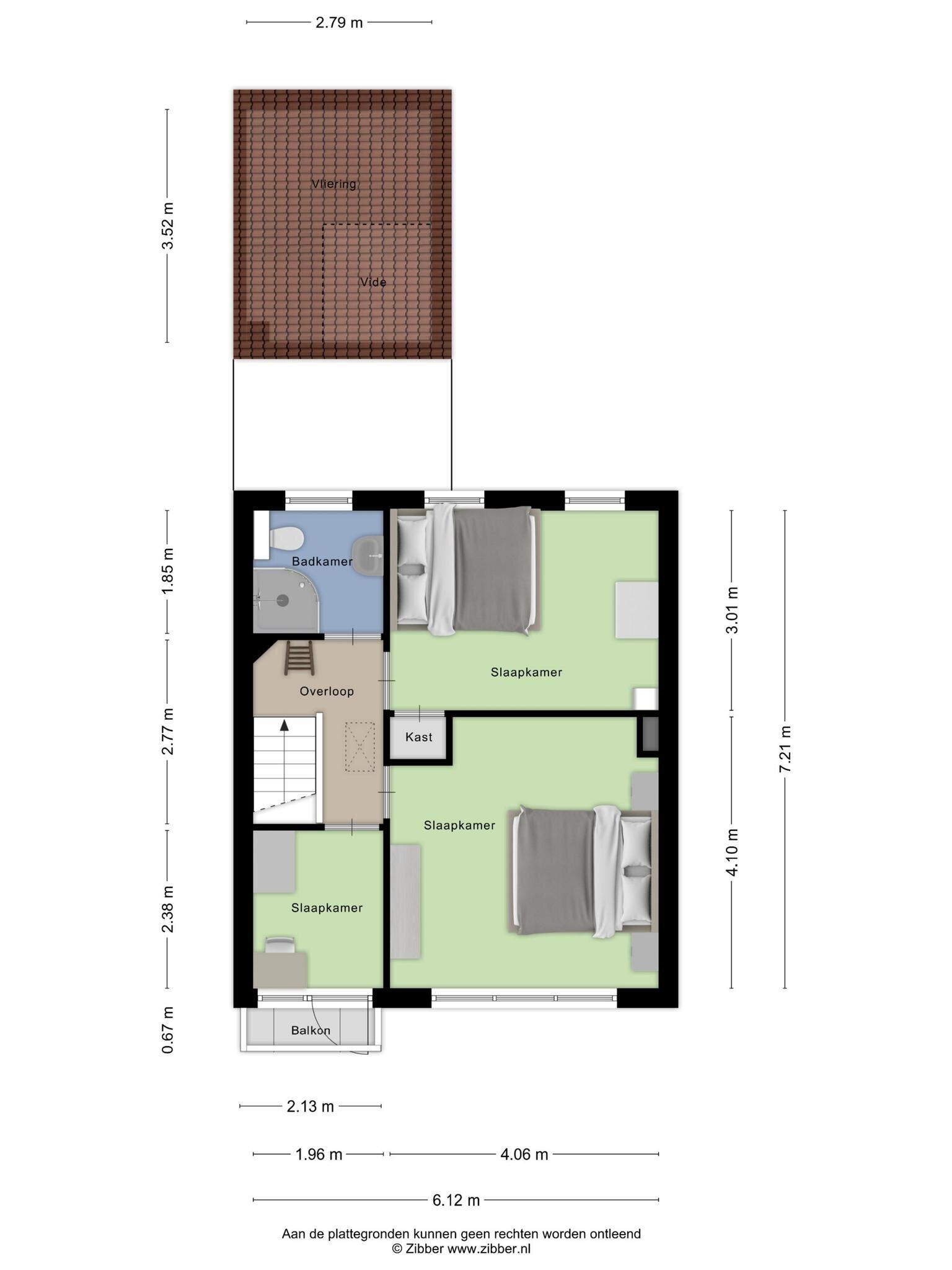
Op de eerste verdieping zijn drie slaapkamers aanwezig. De masterbedroom is ruim, licht en biedt ruimte voor een kingsize bed én grote kasten. Eén van de slaapkamers heeft een eigen balkon, een ander een handige inbouwkast. Ideaal als kinder-, werk- of logeerkamer. De badkamer is netjes afgewerkt met een mooie patroontegelvloer en volledig betegelde wanden. Er is een toilet, wastafel en douche aanwezig. Extra fijn: de badkamer is voorzien van vloerverwarming. Via een uitschuifbare trap bereik je de vliering: een fijne extra opbergruimte voor al je spullen.

Tuinieren, Zonnen & Genieten
Wat een heerlijke tuin! De tuin is groot, zonnig en via meerdere manieren bereikbaar. Er is een fijne mix van gras en verschillende terrassen waar je kunt genieten van de zon, of ruimte hebt voor een loungeset of tuintafel.

Bergingen en garage
Wat deze woning echt uniek maakt is de enorme hoeveelheid bergruimte waar de woning over beschikt. De eerste berging zit aan de woning vast. Dit is een ruime berging met de CV-ketel en een handige vliering waar je veel spullen kwijt kan. Achterin de tuin staat een grote garage met daaraan een hobby ruimte vast. De garage beschikt over een grote garagedeur en heeft daarboven ook een handige vliering. De hobbyruimte beschikt over een extra stuk berging en heeft zowel een gas- als krachtstroomaansluiting. Hier kan je met gemak een praktijkruimte aan huis realiseren.

Sfeer en Doelgroep
De woning straalt rust, ruimte en mogelijkheden uit. Ideaal voor gezinnen die willen groeien, thuiswerkers die op zoek zijn naar een aparte werkruimte, of iedereen die veel ruimte rondom het huis zoekt!

Toelichtingsclausule NEN2580
De Meetinstructie is gebaseerd op de NEN2580. De Meetinstructie is bedoeld om een meer eenduidige manier van meten toe te passen voor het geven van een indicatie van de gebruiksoppervlakte. De Meetinstructie sluit verschillen in meetuitkomsten niet volledig uit, door bijvoorbeeld interpretatieverschillen, afrondingen of beperkingen bij het uitvoeren van de meting.

Plattegronden

Overdracht

Vraagprijs
€ 375.000 k.k.
Status
Verkocht
Aanvaarding
In overleg

Bouw

Object type
Eengezinswoning, 2 onder 1 kapwoning
Soort bouw
Bestaande bouw
Bouwjaar
1952
Soort dak
Zadeldak

Oppervlakte en inhoud

Woonoppervlakte
94 m²
Perceeloppervlakte
397 m²
Inhoud
369 m³
Overige inpandige ruimte
10 m²
Externe bergruimte
41 m²
Gebouwgeb. buitenruimte
2 m²

Indeling

Aantal kamers
5 kamers (3 slaapkamers)
Aantal badkamers
1 badkamer
Badkamervoorzieningen
Toilet, douche, wastafel
Aantal woonlagen
4 woonlagen

Energie

Energielabel
D
Energielabel registratie
27-09-2020
Isolatie
Muurisolatie, vloerisolatie, dubbel glas, hr glas
Verwarming
Cv-ketel, vloerverwarming gedeeltelijk
Warm water
Cv-ketel
Cv ketel
Remeha tzerra combiketel gas gestookt uit 2024

Buitenruimte

Ligging
Aan rustige weg
Balkon / dakterras
Balkon
Tuin
Achtertuin, voortuin

Bergruimte

Schuur / berging
Vrijstaand steen

Garage

Soort garage
Vrijstaand steen
Capaciteit
1 auto

Parkeergelegenheid

Soort parkeergelegenheid
Openbaar parkeren, op eigen terrein

Energieverbruik in Roosendaal

Energielabel deze woning

Energielabel D

Publicatie energielabel: 27-09-2020

Stroomverbruik per jaar

3160 kWh

(Gemiddelde twee onder een kap in Roosendaal)

Gasverbruik per jaar

1510 m³

(Gemiddelde twee onder een kap in Roosendaal)

* Cijfers zijn afkomstig van het CBS en bedoeld als indicatie en kunnen verschillen voor deze woning

Indicatie hypotheeklasten

Eigen inleg:
Spaargeld / overwaarde

Rente:
Laagste 10-jaars rente

Laagste 10-jaars rente

2,71% - Centraal Beheer Groen... - NHG


2,93% - Centraal Beheer Groen... - 80%

Laagste 20-jaars rente

3,19% - Centraal Beheer Groen... - NHG


3,31% - Centraal Beheer Groen... - 80%

Laagste 30-jaars rente

3,34% - Centraal Beheer Groen... - NHG


3,47% - Centraal Beheer Groen... - 80%


Hypotheek:

Bruto maandlasten: € 0 p/m

Netto maandlasten: € 0 p/m

Hoe berekenen we dit?

Het rentepercentage is gebaseerd op de laagste 10-jaars vaste rente voor één hypotheekdeel. De vermelde rente (2.71% met NHG) is gecontroleerd op 04-07-2025. Deze berekening is gebaseerd op een annuïteitenhypotheek die volledig wordt afgelost, waarbij de maandlasten gedurende de gehele looptijd gelijk blijven. De werkelijke rente en netto maandlasten kunnen variëren, afhankelijk van uw persoonlijke situatie en de hypotheekverstrekker. Raadpleeg een financieel adviseur voor een nauwkeurige berekening en advies. Aan deze berekening kunnen geen rechten worden ontleend; het dient enkel als indicatie.

Documentatie

Zonnegrenzen bekijken

Op de kaart

Inwoners in Roosendaal

Cijfers voor postcodegebied 4702

Totaal aantal inwoners
13185 inwoners
Mannen
50%
Vrouwen
50%

Inwoners in Roosendaal

Cijfers voor postcodegebied 4702

tot 15 jaar
16%
15 tot 25 jaar
12%
25 tot 35 jaar
27%
45 tot 65 jaar
27%
65 en ouder
18%

Huishoudens in Roosendaal

Cijfers voor postcodegebied 4702

Eenpersoons zonder kinderen
41%
Meerpersoons zonder kinderen
26%
Huishoudens zonder kinderen
67%

Huishoudens in Roosendaal

Cijfers voor postcodegebied 4702

Huishoudens met één kind
9%
Huishoudens met meerdere kinderen
24%
Huishoudens met kinderen
33%

Woningen in Roosendaal

Cijfers voor postcodegebied 4702

Woningen voor 1945
29%
Woningen tussen 1945 en 1965
38%
Woningen tussen 1965 en 1975
10%
Woningen tussen 1975 en 1985
5%
Woningen tussen 1985 en 1995
2%

Woningen in Roosendaal

Cijfers voor postcodegebied 4702

Woningen tussen 1995 en 2005
8%
Woningen tussen 2005 en 2015
8%
Woningen na 2015
1%
Huurwoningen
50%
Koopwoningen
50%

Overige in Roosendaal

Cijfers voor postcodegebied 4702

Gemiddelde WOZ waarde
€ 183.000,-
Personen onder de 65 met uitkering
11%

Overige in Roosendaal

Cijfers voor postcodegebied 4702

Adressen per km²
2116
Stedelijkheid (schaal 1 op 5)
80%
Postcode kaart 4702 Gemeente kaart roosendaal

Korte feiten over Roosendaal

Roosendaal (uitspraakⓘ) is een stad in de Nederlandse provincie Noord-Brabant, en de grootste plaats binnen de gelijknamige gemeente Roosendaal.

Indien u vragen heeft of u wilt een bezichtiging inplannen, dan kunt u gebruik maken van het formulier hiernaast. Er zal daarna op korte termijn contact met u worden opgenomen.

Vakidioten met een passie voor vastgoed

Bij C&R Makelaars draait alles om jou en je woning. Wij zijn een frisse, energieke generatie makelaars met een passie voor mensen en de woningmarkt.

We geloven in een persoonlijke aanpak zonder poespas: eerlijk, transparant en altijd met een flinke dosis enthousiasme. Het verkopen van je huis is een belangrijke stap, en daarom begeleiden we je op een manier die bij jou past, van begin tot eind.

Met onze diepgaande kennis van de lokale markt geven we je waardevol advies dat perfect aansluit bij jouw situatie én dat van potentiële kopers.

Daarnaast staat ons creatieve team van vastgoedmarketeers klaar om jouw woning in de schijnwerpers te zetten. Met slimme en doordachte strategieën zorgen we ervoor dat je huis opvalt en het maximale resultaat behaalt.

Jouw tevredenheid is ons einddoel. We zetten alles op alles om je verwachtingen te overtreffen. Nieuwsgierig naar ons team? Klik op de button hieronder en maak kennis met ons!

Vakidioten met een passie voor vastgoed
Reviews C&R Makelaars

Lisztlaan 7, Roosendaal

€ 375.000 k.k. - Verkocht

Helaas, deze woning is verkocht!

Net te laat, deze woning is al verkocht. Laat een zoekopdracht bij ons achter zodat wij u direct kunnen helpen wanneer er nieuw aanbod beschikbaar komt.